23 LOGEMENTS INTERMEDIAIRES ET UN LOCAL D'ACTIVITES
Une façade et demi sur le Boulevard
PROGRAMME:
LIEU:
DATE:
MOA:
PHASE:
BUDJET:
SURFACE:
Construction d'un immeuble de logements collectifs
Clichy-sur-Seine (92)
PC 2019
Groupe In'Li
Chantier en cours
3.3 M€
1 460 m2 SDP
Le projet valorise une situation exceptionnelle en entrée de ville en prenant le parti de révéler la transition volumétrique qui s'opère dans le quartier, entre les anciennes opérations de grands ensembles hors gabarit et le front urbain réglé du boulevard avec ses alignements élégants de façades en pierre.
Cette petite parcelle est rattachée à la résidence adjacente ce qui permet de densifier le site en ouvrant des vues directes sur le jardin situé au sud.
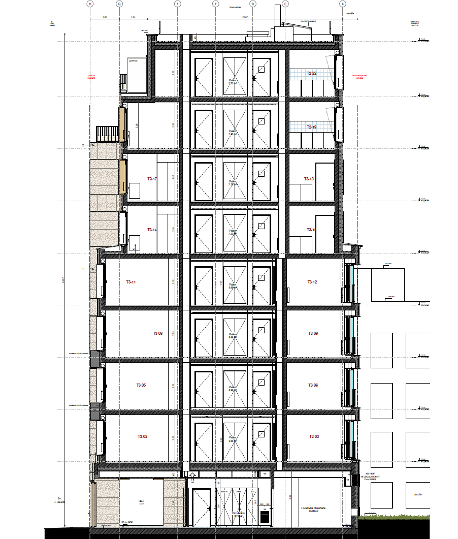
Le programme prévoit la création d'un local d'activité de 95 m2 au rez-de-chaussée et de 23 logements du T2 au T4.
L'ensemble des façades sont revêtues d'un parement en pierre calcaire de deux teintes différentes: beige clair pour les niveau bas et gris bleuté aux étages hauts, s'intégrant dans le renouvellement urbain de la ville de Clichy.






Vue du chantier en cours

12 réflexions sur “ 23 LOGEMENTS INTERMEDIAIRES ”
Les commentaires sont fermés.