
DEUX MAISONS DE VILLE JUMELLES
UNE CONSTRUCTION BAS CARBONE HORS SITE
PROGRAMME:
LIEU:
DATE:
MOA:
PHASE:
BUDJET:
SURFACE:
2 maisons
Clichy-sur-Seine (92)
PC 2022
Privé
Chantier en cours
850 k€
273 m2 SDP
Situé en fond de parcelle, un atelier artisanal est démoli pour faire place à deux maisons de ville. Cette opération est l’occasion de revaloriser l’ensemble de la résidence ; en effet, la cour existante est agrandie et un arbre est planté, tandis qu’un nouvel appentis permet de remiser les bicyclettes et un nouveau placard OM.
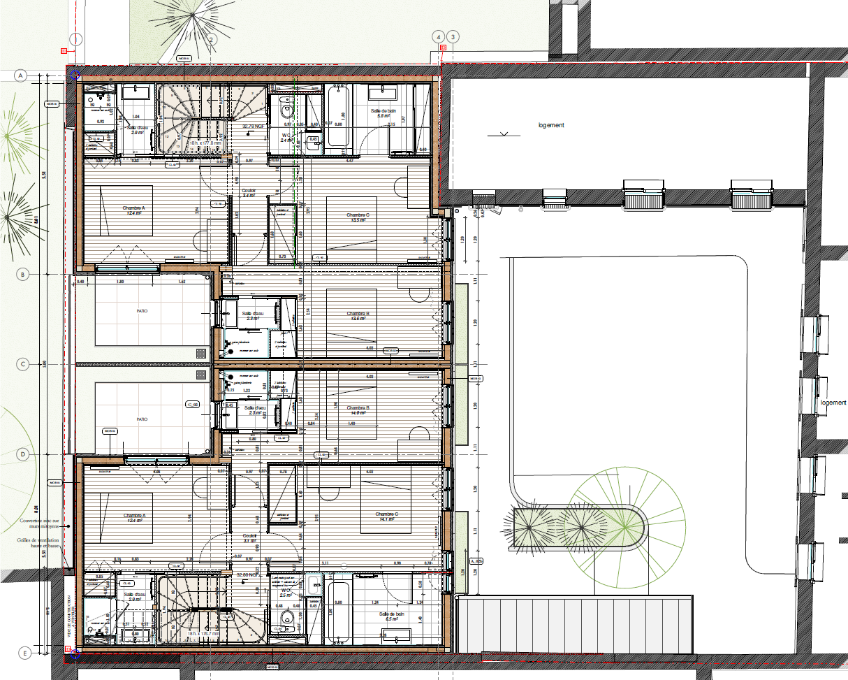
Les maisons sont jumelles et présentent un plan symétrique. Un patio partagé permet de créer de nouvelles vues et de distribuer un plan traversant nord/sud. Un vaste séjour cuisine ouvert au rez-de-chaussée permet la mise en accessibilité de la maison. A l’étage, le plan rend possible l’aménagement de trois chambres avec salle d’eau privative ou bien d’une grande salle de bain. Au dernier niveau, l’accès à la toiture terrasse se fait par un espace favorable au télétravail dans des conditions agréables.
Une conception anticipant une préfabrication intégrale de l’enveloppe du bâtiment (murs ossature bois et plancher à caissons lamellés croisés) permettra un chantier en filière sèche avec un planning optimisé.













7 réflexions sur “ 2 MAISONS DE VILLE ”
Les commentaires sont fermés.